エスコート東大前 06/03
賃料
要問合せ
管理費
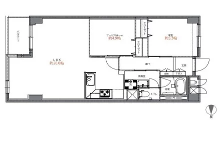
間取り
| 所在地 | 東京都文京区向丘1丁目10-9 | ||
|---|---|---|---|
| 交通 | 東京メトロ南北線 本駒込駅 徒歩2分 都営三田線 白山駅 徒歩5分 東京メトロ南北線 東大前駅 徒歩8分 |
||
| 構造 | SRC | 規模 | 地上11階建て |
| 築年数 | 2001年01月築 | 専有面積 | 0.00㎡ |


_id7870.webp)















